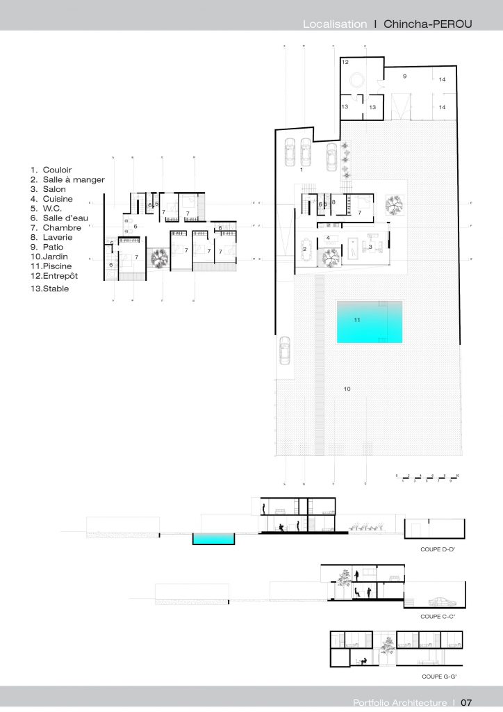
2. Maison Plage // MAISON SANCHEZ-NAVARRETE