GARCIA GODOS // CGGC
À propos
Portfolio 1
ARGILE/CLAY/ARCILLA 1
ARGILE/CLAY/ARCILLA 2
PLATRE/PLASTER/YESO 1
BOIS/WOOD/MADERA
Portfolio 2
Portfolio Architecture
Performance
Narcisse
Installation
Dans l’atelier
La Hirondela
Contact
Services
https://www.instagram.com/cggc_garciagodos/
Facebook
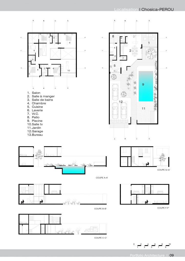
3. Maison Campagne // MAISON D’ANGLE